Finansieringsexempel - Vad blir din månadskostnad?
Med vår finansieringskalkylator kan du enkelt se vilken månadskostnad ditt drömprojekt skulle få om du väljer att dela upp ditt köp. Du kan välja mellan att dela upp hela ditt köp eller bryta ner det till mindre delar där du kan betala en del som en kontantinsats (förskottsfaktura från Sorselestugan) och en resterande del på delbetalning via Resurs bank där vi erbjuder räntefri delbetalning upp till 24 månader.
Viktigt! De valen och justeringar du gör i denna kalkylatorn kommer inte påverka din varukorg och utcheckning. Läs igenom de olika betalningsalternativen och välj det som passar dig bäst. Väljer du att dela upp ditt köp så kommer du välja delbetalningsperiod i samband med att du får din första faktura.
Att låna kostar pengar!
Om du inte kan betala tillbaka skulden i tid riskerar du en betalningsanmärkning. Det kan leda till svårigheter att få hyra bostad, teckna abonnemang och få nya lån. För stöd, vänd dig till budget- och skuldrådgivningen i din kommun. Kontaktuppgifter finns på konsumentverket.se
Högsta beloppsgräns för delbetalning är 350000 SEK, kontantinsatsen behöver justeras.
Kontantinsats
Delbetalningsbelopp
Delbetalningsperiod
Ränta
Månadsavgift
- Uppläggningsavgift
- Adm.avgift/mån
- Adm.avgift/Totalt
- Effektiv ränta
*Angivna siffror i finansieringen är en uppspkattning och gäller endast vid godkänd förfrågan
Exempel: Handla för 10 000 kr
Ordinarie månadsbelopp 879 kr
Delbetalningar: 12 st
Uppläggn.avgift: 349 kr
Adm.avgift/mån: 45 kr
Effektiv ränta: 16,19 %
Rörlig årsränta: 0 %
Betala totalt: 10 889 kr
Exemplet baseras på ett köp den 15:e dagen i en kalendermånad och är beräknat 2023-07-11. Den effektiva räntan beräknas enligt Konsumentverkets allmänna råd om konsumentkrediter. Exemplet förutsätter att räntan och avgifterna är oförändrade under hela kreditperioden.
Dubbelgarage Syter 50 kvm
Vi har förberett en garagemodell på 50 kvm som rymmer två bilar. Komplettera byggsatsen i vår konfigurator efter dina önskemål och behov.
Vi på Sorselestugan erbjuder marknadens kanske mest färdigställda byggsatser för dubbelgarage. Väggmodulerna levereras kompletta med vindduk, läkt och panel redan från fabrik och kan snabbt och enkelt monteras ihop på plattan.
Vad ingår i grundpriset för Dubbelgarage Syter 50kvm?
- Obehandlade väggmoduler i vägghöjd 2,4m med 95mm väggregel
- 2st obehandlade Slagportar
- 3st 10x6 vita fönster, 2-glas isolerglas
- 1st tät ytterdörr 10x21
Kom ihåg att du enkelt kan öppna upp denna produkten i vår konfigurator och göra önskade justeringar för att passa ditt behov. Du kan även uppgradera regeltjockleken och lägga till isolering för både vägg och tak samt garageportsmotorer m.m.
Modulhusen är förberedda för betongplatta ej för plintgrund.
Funktioner och egenskaper
- Färdiga väggmoduler med vindduk, läkt och färdigspikad ytterpanel.
- Den höga färdighetsgrader förkortar byggtiden och du får snabbt tak över ditt garage.
- Alla garage levereras med takstolar som är anpassade för snözon 4,5. Kontakta oss för högre krav.
Leveransinformation
Grund
Vårt modulsystem är anpassat för montering på betongplatta. Grunden ingår ej i byggsatsen utan måste förberedas på egen hand.
Väggmoduler
Våra väggmoduler finns i följande bredder, 1200mm, 1000mm, 700mm, 600mm, 300mm och en gavelmodul för garageportar 2500mm. Väggmodulerna monteras motsols från ett hörn på medföljande syll. Väggmodulen har en hög färdiggrad för snabb montering. Modulerna har som standard 34x95mm reglar i konstruktionsvirkesklass C24 med ett 2-3 regelsystem beroende på bredd på modulen. Regeltjockleken 34x145 finns även som alternativ i vår konfigurator. Varje modul har vindduk, läkt och påspikad väggpanel 22x120mm. Vi erbjuder två alternativ på vägghöjd 2,4 meter och 2,7 meter. Syll och hammarband varierar beroende på vägghöjd och regelstorlek.
|
Vägghöjd |
Regel |
Syll |
Hammarband |
|
2,4m |
34x95mm |
45x95mm |
34x95mm |
|
2,4m |
34x145mm |
45x145mm |
34x145mm |
|
2,7m |
34x145mm |
45x145mm |
45x145mm |
Tak
Taket består av takstolar cc1200 anpassade standard efter snözon 4,5. På takstolarna läggs trampsäker kondensduk och bärande takläkt/rote 45x95mm. I taket ingår även vindskivor och takfotsbrädor 22x195mm samt underspikning 22x120mm och glespanel 28x70. Yttre takbeklädnad väljs i samband med kundens beställning.
Isolering
Våra väggmoduler och tak är i grundutförande oisolerade. Om du valt 95mm regeltjocklek kan du välja att isolera väggmodulerna med 95mm eller 95mm + 45mm. Väljer du det senare alternativet ingår även 45x45mm reglar för montering invändigt. Har du istället valt 145mm regeltjocklek så kan du välja att isolering i tjockleken 145mm eller 145mm + 45mm. Takisolering finns i följande tjocklek 340mm, 195mm eller 145mm.
Monteringstillbehör som ingår
- Syllisolering
- Fönsterbleck, tröskelbleck, droppbleck – fönster/dörr/port
- Karmhylsor inklusive montagenyckel
- Vinkeljärn inklusive ankarskruv till takstolsmontage
- skruv: 3,5x40, 3,5x50, 5,0x60, 5,0x80, 5,0x100, betongskruv till syllmontage
- Spik 2,4x48mm till väggpanel, 3,4x100mm till takrote 45x95mm
- Myggnät för takfot
- Ventilgaller för kallvind
Denna produkt finns i följande kategorier: Dubbelgarage
Storlek
50 kvm
Mått
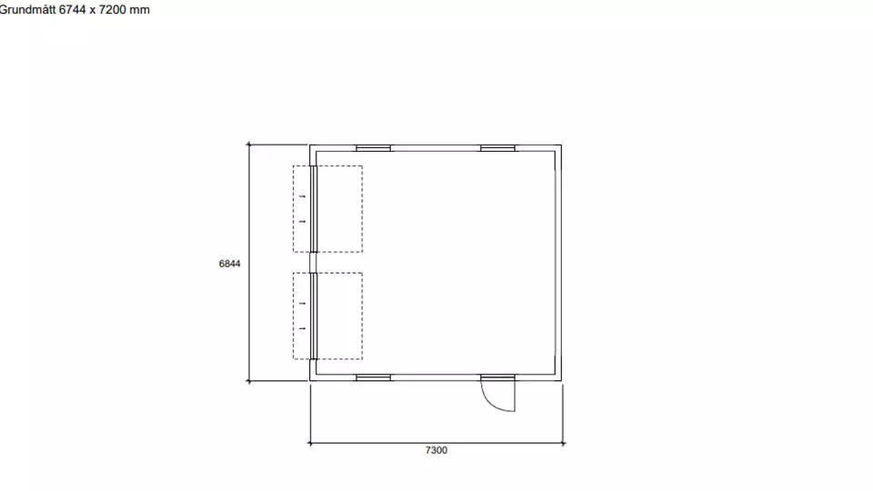
Utvändigt mått: 6844mm x 7300mm
Anpassa i 3D-verktyg
Öppna i vår konfigurator och anpassa efter dina önskemål
Ritningar och dokument
Vi erbjuder fri frakt inom Sverige för våra byggsatser.
Fri frakt omfattar:
- Gälller vid köp av byggsats
- Leverans till närmaste terminal
- Leverans till önskad adress (kund ansvarar för lossning med traktor. Vägen ska vara framkomlig för fullstor lastbil).
Frakttillägg:
- Kranbilstillägg enligt tabell
|
Hämta vid fabrik |
Hämta terminal |
Leverans till adress |
Leverans till adress med egen lossning |
Kranbil |
Storlek |
Benämning |
|
0 kr |
200 kr |
200 kr |
|
|
Paket upp till 3kg |
Klass 7: Spröjs, låssatser, skruvsatser m.m. |
|
0 kr |
400 kr |
400 kr |
|
|
|
Klass 5: Bryggbeslag / Snickarglädje |
|
0 kr |
500 kr |
500 kr |
|
|
Paket upp till 20kg |
Klass 6: Fönster m.m. |
|
0 kr |
1 000 kr |
1 000 kr |
|
|
Pallgods |
Klass 4: Kompletta kaminpaket, Dörrar / pallgods, Grillplats, Eldstad grillkåta, Stora fasta fönster, pontoner 1m. |
|
0 kr |
0 kr |
|
0 kr |
4 500 kr |
0-15 kvm |
Klass 1: Stugor upp till 15kvm / Bryggor mellan 4-6m |
|
0 kr |
3 500 kr |
|
3 500 kr |
6 500 kr |
|
Klass 1b: Tillbehör stugor som exempelvis isolerpaket - Tak & golv / Vägg, Plåttak |
|
0 kr |
0 kr |
|
0 kr |
6 500 kr |
16-30 kvm |
Klass 2: Stugor utan loft 20-30kvm / Bryggor 8m |
|
0 kr |
5 000 kr |
|
5 000 kr |
8 500 kr |
|
Klass 2b: Pontoner över 1m |
|
0 kr |
0 kr |
|
0 kr |
7 500 kr |
31-57 kvm |
Klass 3: Stugor med loft 24-30m² och stugor utan loft 35-50m² samt samtliga Bastuflottar 6-8mx4,8m |
|
0 kr |
0 kr |
|
0 kr |
9 500 kr |
58-81 kvm |
Klass 3b: Dubbelgarage 58-81kvm |
|
0 kr |
0 kr |
|
0 kr |
11 500 kr |
82-120 kvm |
|
|
0 kr |
0 kr |
|
0 kr |
12 500 kr |
121-150 kvm |
|
|
0 kr |
0 kr |
|
0 kr |
15 000 kr |
151 kvm och större |
|
Så tycker våra kunder
Fler produkter
Svensk kvalité
.
Lätt att bygga
.
Nöjd-kund-garanti
.
Snabb leverans
.