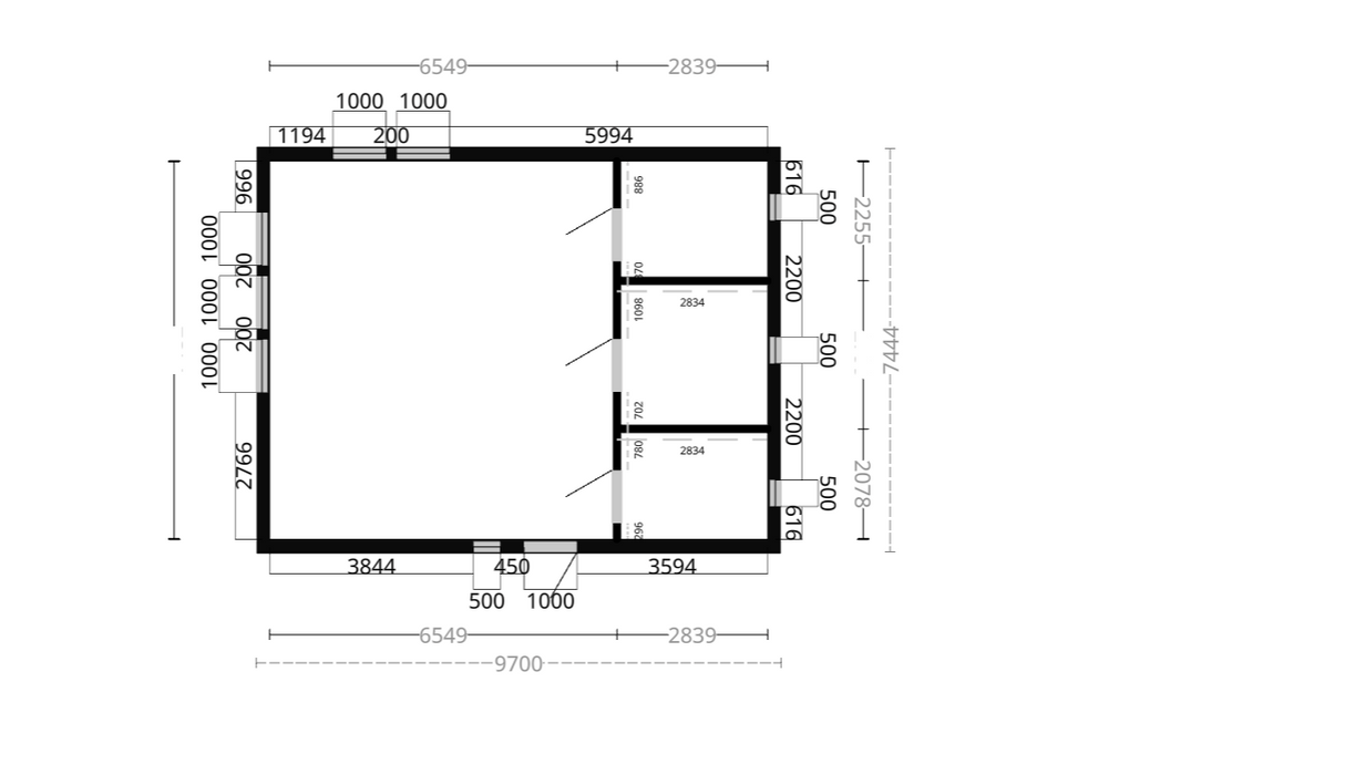
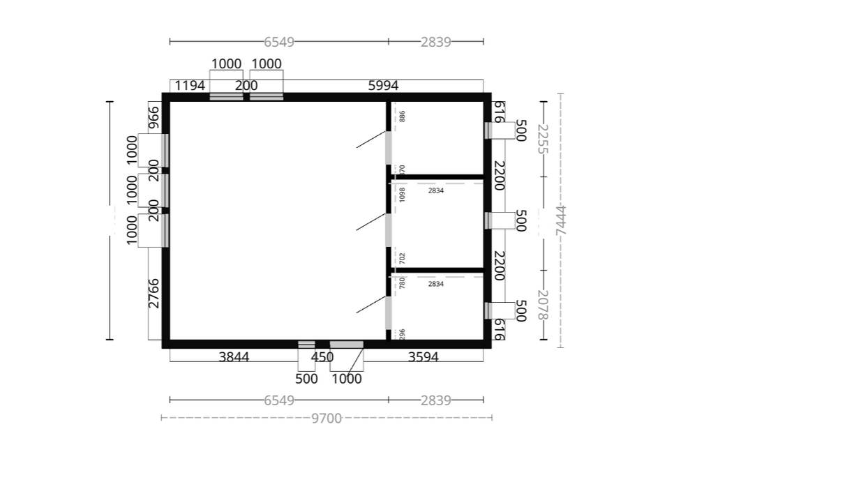
Fritidshus Borgafjäll 2 rum Kök/allrum och toalett 72 kvm
(Uppskattad tid från beställningsdatum till leverans hos kund. Kan påverkas beroende på valt fraktsätt. Lämna kommentar på order vi särskilda önskemål)
Fritidshus Borgafjäll 2 rum Kök/allrum och toalett 72 kvm er restnotert og sendes så snart den er på lager igjen.
Kunne ikke laste inn tilgjengelighet for henting
- 24 måneder rentefritt
- Enkelt å bygge
- 4,8 i kundevurdering
- Over 40 års erfaring
- Kundeservice i toppklasse
Beskrivelse
Beskrivelse
House Configuration Details
HUSKONFIGURATION - 1.0.0816635 ═══════════════════════════════════════════════════════════════ BYGGNAD: • Storlek: 7444×9700mm (72.21m²) • Total byggarea: 7444mm x 9700mm (72.21m²) • Vägghöjd - Väggpanel: 2.387m • Taktyp: Fackverktakstol () • Takfärg: Svart • Takavvattning: Nej • Färg vägg: Obehandlad • Färg Vindskivor och foder: Grundmålad vit TEKNISKA SPECIFIKATIONER: • Takvinkel: 22° • Nockhöjd: 4.190m • Nocklängd: 10.680m • Längd Taknock till takfot: 4.519m • Undertak: Undertak med kondensduk & läkt ISOLERING: • Tak: 145mm • Vägg: 95.00mm OSB: • Tak m²: 71.78 • Vägg m²: 143.52 INNERVÄGG: Storlek m²: 30.72 Dörr: 3x Innerdörr 8x21 Tillbehör: MODULER (33 st totalt): • 5X Modul 10x18 3-glasfönster fast dubbelhärdat - m12 • 1X Modul Ytterdörr med smalt fönster 10x21 - m12 • 1X Modul 5x18 3-glasfönster fast dubbelhärdat - m12 • 2X Modul 5x12 2-glasfönster sidohängt - m12 • 1X Modul 5x5 2-glasfönster sidohängt - m12 • 16X Modul m12 • 2X Modul h4v • 2X Modul m3 • 2X Modul h4h • 1X Modul m6
Mange bilder er 3D-visualiseringer og kan avvike fra virkeligheten.
Finansieringseksempel – Hva blir din månedlige kostnad?
Med vår finansieringskalkulator kan du enkelt se hvilken månedlig kostnad drømmeprosjektet ditt vil få dersom du velger å dele opp kjøpet. Du kan velge å dele opp hele kjøpet eller dele det i mindre deler der du betaler en del som egenkapital (forskuddsfaktura fra Sorselestugan) og resten som delbetaling via Resurs Bank.
Produktets pris: 288,300 kr
Spesifikasjon
* Oppgitte tall i finansieringen er et estimat og gjelder kun ved godkjent søknad
Eksempel: Handle for 10 000 kr
Eksemplet er basert på et kjøp den 15. dagen i en kalendermåned og er beregnet 2023-07-11. Den effektive renten er beregnet i henhold til Forbrukertilsynets retningslinjer for forbrukerkreditt. Eksemplet forutsetter at rente og gebyrer forblir uendret gjennom hele kredittperioden.
Hvis du ikke kan betale tilbake gjelden i tide, risikerer du en betalingsanmerkning. Det kan føre til vanskeligheter med å leie bolig, tegne abonnement og få nye lån. For støtte, kontakt gjeldsrådgivningstjenesten i din kommune. Kontaktinformasjon finnes på forbrukertilsynet.no






