Attefallshus Brusan Loft Torp 30 kvm
(Antal arbetsdagar från beställningsdatum)
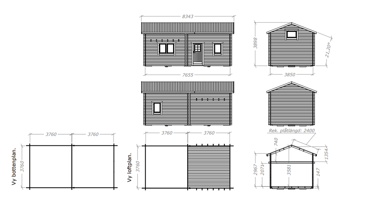
Attefallshus Loft Torp 30 kvm är en 2 rums stuga med ett stort 15m2 allrum/kök och ett 15m2 sovrum (15-15).
Läs mer
Vad ingår i byggsatsen?
Vad ingår i byggsatsen?
Attefallshus Brusan Loft Torp 30 kvm är restnoterad och skickas så snart den finns i lager igen.
Det gick inte att läsa in tillgängligheten för upphämtning
- 24 månader räntefritt
- Lätt att bygga
- 4.8 i kundbetyg
- Över 40 års erfarenhet
- Kundservice i toppklass
Beskrivning
Beskrivning
Attefallshus Brusan Loft Torp 30 kvm är det perfekta valet för den som söker ett funktionellt och charmigt attefallshus. Den rymliga designen kombinerar traditionell timmerstuga med moderna lösningar, vilket ger både stil och bekvämlighet. Med en yta på 30 kvm plus ett loft på 15 kvm får du ett hus som passar perfekt för både fritidshus och permanentboende.
Attefallshus som timmerstuga
Att välja en timmerstuga som attefallshus har flera fördelar. Dels är det väldigt enkelt att montera även för den som inte har byggvana. Det är ett utmärkt projekt att genomföra tillsammans med familj och vänner, där ni får möjlighet att skapa något gemensamt. Den knuttimrade konstruktionen är en beprövad metod som har använts i många generationer och erbjuder både hållbarhet och ett vackert utseende. Med denna byggteknik får du en solid och långvarig struktur som tål väder och vind.
Flexibel planlösning
Attefallshus Brusan Loft Torp har en genomtänkt planlösning som ger maximal flexibilitet. Den rymliga interiören består av ett stort allrum/kök på 15 kvm samt ett sovrum på 15 kvm. Sovrummet kan enkelt delas av med en mellanvägg för att skapa ytterligare ett rum. På så sätt kan du anpassa huset efter dina behov, till exempel genom att lägga till ett badrum eller en bastu. Mellanväggarna som levereras är täta, vilket gör att du själv kan välja var och hur stora öppningarna ska vara. Detta ger dig full kontroll över hur du utformar ditt attefallshus.
Produktspecifikation
Produktspecifikation
Mått: Utv. Mått: 765,5x385cm / Inv.mått: 376x376cm & 376x376cm (15+15 m2)
Vägg: 45x145mm profilhyvlat, geringsknutat timmer med infräst spår och tätningslist till knutar och spont samt en inknutad mellanvägg.
Mellanväggen som delar av stugan levereras hel utan öppning.
Kunden får själv ta upp och anpassa öppningen i mellanväggen till en större eller till en alt. två mindre dörröppningar efter eget önskemål. Öppning upp till loftet görs av kund och anpassas efter behov.
Golv: Golvåsar 45x95mm, 22x95mm spontat golv.
Loft: Loftåsar 45x135mm, 21x95-120mm hyvlat och spontat golv.
Stege till loftet.
Tak: Takåsar 45x120mm, råspont 21x95mm.
Vindskivor och takfotsbrädor 22x120mm
Takmått: 2x 2,4 x 8,34m
Fönster: 5st 670x945mm öppningsbara med isolerglas och beslag. Dörr och fönsterplacering bredvid dörr är standard med förberedd håltagning. Resterande 4st fönster placeras på valfri plats och hål för dessa tas upp av kund.
Dörr: Dörr 90x190cm med isolerglas och spröjs. Panel på utsidan med svart sparkplåt.
Isolerad -18gr med infrästa tätningslister i karmen.
Övrigt: Foderbrädor till dörr och fönster 22x120mm
Vikt: Stugan levereras som byggsats och kommer normalt i 5st virkespaket + 1st dörr i kartong.
Vikt totalt ca: 3210kg (per kolli: 1050kg / 850kg / 600kg / 350kg / 320kg / 40kg)
Isolering: Stugan är i grunden helt oisolerad men man kan välja till tillvalspaket så att man kan isolera både golv, tak och väggar. Se fliken tillbehör.
Ingår ej: Yttre takbeklädnad, Handtag och låscylinder, Spröjs till fönster, Skruvsats. Detta finns att välja till som tillbehör.
Dokument
Dokument
Många bilder är 3D-visualiseringar och kan skilja sig från verkligheten.
Inspirationsbilder
Finansieringsexempel - Vad blir din månadskostnad?
Med vår finansieringskalkylator kan du enkelt se vilken månadskostnad ditt drömprojekt skulle få om du väljer att dela upp ditt köp. Du kan välja mellan att dela upp hela ditt köp eller bryta ner det till mindre delar där du kan betala en del som en kontantinsats (förskottsfaktura från Sorselestugan) och en resterande del på delbetalning via Resurs bank.
Produktens pris: 150,200 kr
Specifikation
* Angivna siffror i finansieringen är en uppskattning och gäller endast vid godkänd förfrågan
Exempel: Handla för 10 000 kr
Exemplet baseras på ett köp den 15e dagen i en kalendermånad och är beräknat 2023-07-11. Den effektiva räntan beräknas enligt Konsumentverkets allmänna råd om konsumentkrediter. Exemplet förutsätter att räntan och avgifterna är oförändrade under hela kreditperioden.
Om du inte kan betala tillbaka skulden i tid riskerar du en betalningsanmärkning. Det kan leda till svårigheter att få hyra bostad, teckna abonnemang och få nya lån. För stöd, vänd dig till budget- och skuldrådgivningen i din kommun. Kontaktuppgifter finns på konsumentverket.se








